Imóveis
Terreno/Lote à venda, 6 m² por R$ 600.000,00
Rua Piatá - Vila Isolina Mazzei - São Paulo, SP
| |
Observações
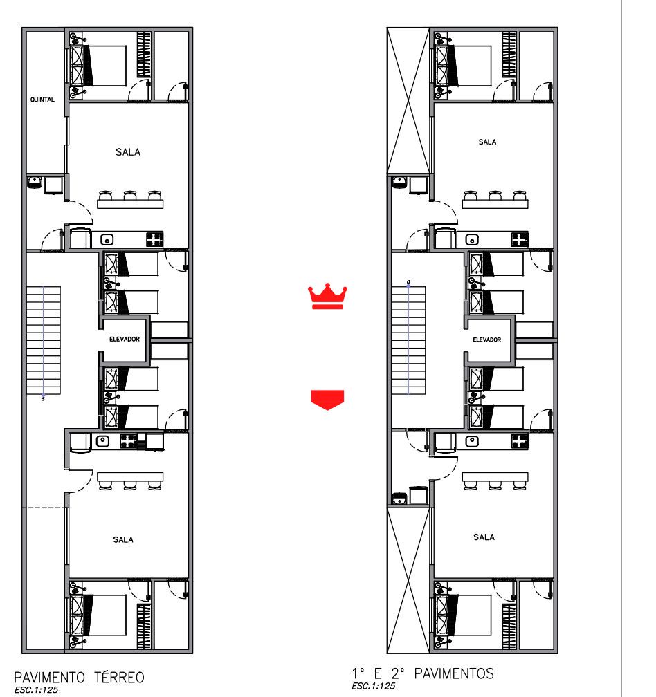
Projeto Vila Isolina Mazzei
Terreno incorporado 6,40 x 16
10 unidades de l dormitório com aproximadamente 28m:.
2 pavimentos + l cobertura
3 unidades por pavimento
l cobertura no ultimo andar.
Proposta:
1. 2 unidades destinam ao proprietário do terreno como parte de
pagamento
2. 8 unidades livre para o investidor contando com a cobertura.
3. Condição de pagamento, terreno, incorporação, mão de obra,
material para todas as unidades.
4. Sinai RS 300.000.00
S. 60 dias: RS 100.000.00
6. Início da obra: RS 150.000,00 + 8 parcelas (RS 52.500,00) corrigida
pele INCC
7. Total investido, terreno, taxas, projeto, mão de obra e material RS
870.000.00
8. As 8 unidades o preço de custo para investidor RS 108.750,00 (cada
Compartilhe! :)
R$ 600.000,00
- Imóveis publicados: 254
- Localização: São Paulo, SP
- Anúncio: Profissional
- Não deposite antecipadamente
- Atenção a ofertas milagrosas
- Denuncie em caso de suspeita
- Saiba com quem está negociando
- Locais públicos e movimentados
Antes de tudo, sempre evite depositar valores antes de verificar a existência do conteúdo anunciado.
Antes de iniciar uma negociação, pesquise a média de preço daquilo que deseja. Fique atento aos anúncios com preços muito baixos.
Havendo suspeita, você pode fazer uma denúncia clicando em "Denunciar" na página do anúncio ou pelo chat.
Antes de encontrar a outra pessoa, pergunte o nome completo, lugar onde mora ou trabalha e faça pesquisas na Internet.
Prefira fechar negócio em um lugar público que ofereça um ambiente seguro, e avise outras pessoas. Se possível, vá acompanhado.
Deseja realmente excluir sua conta?
Por que você está denunciando esse anúncio?
Mensagem para GRUPO REIS Construtora e Incorporadora
[Terreno/Lote à venda no Vila Isolina Mazzei - São Paulo, SP]
- Rua Piatá - Vila Isolina Mazzei - São Paulo, SP
![]() | Preço: R$ 600.000,00 Terreno total: 6 m2 Nossa referência: IM962876 Referência da imobiliária: 330448 |
Observações Gerais
Projeto Vila Isolina Mazzei Terreno incorporado 6,40 x 16 10 unidades de l dormitório com aproximadamente 28m:. 2 pavimentos + l cobertura 3 unidades por pavimento l cobertura no ultimo andar. Proposta: 1. 2 unidades destinam ao proprietário do terreno como parte de pagamento 2. 8 unidades livre para o investidor contando com a cobertura. 3. Condição de pagamento, terreno, incorporação, mão de obra, material para todas as unidades. 4. Sinai RS 300.000.00 S. 60 dias: RS 100.000.00 6. Início da obra: RS 150.000,00 + 8 parcelas (RS 52.500,00) corrigida pele INCC 7. Total investido, terreno, taxas, projeto, mão de obra e material RS 870.000.00 8. As 8 unidades o preço de custo para investidor RS 108.750,00 (cada
Anunciante GRUPO REIS Construtora e Incorporadora
Anúncio: Profissional
Telefone(s)
(11) 99984-4822





