Imóveis
Terreno/Lote à venda, 417 m² por R$ 480.000,00
Rodovia RST-509 - São José - Santa Maria, RS
| |
Observações
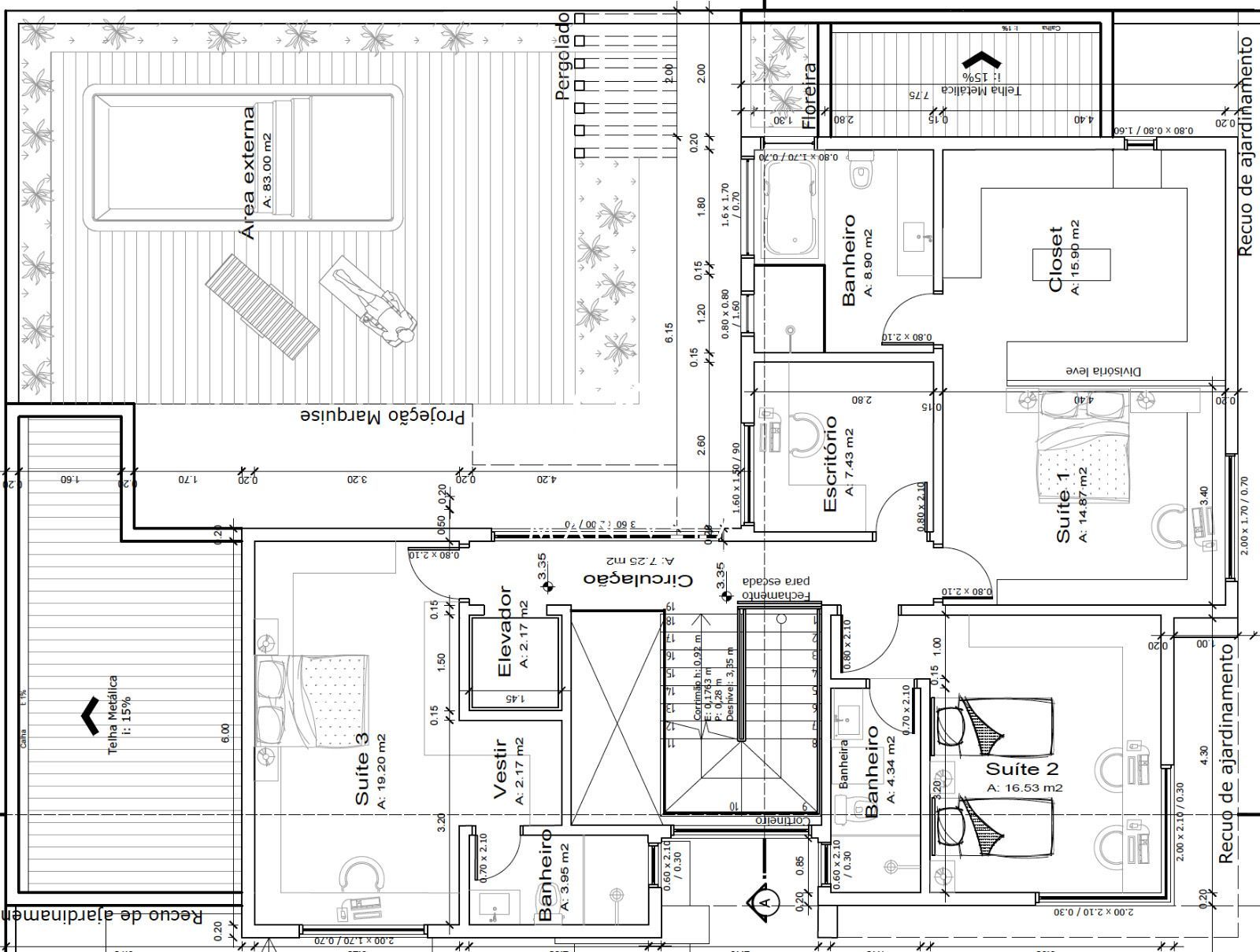
Este terreno com as fundações pronta e projeto feito pelo Escritório de Ângela Pisani, espera pelo seu novo proprietário que pode ser você.
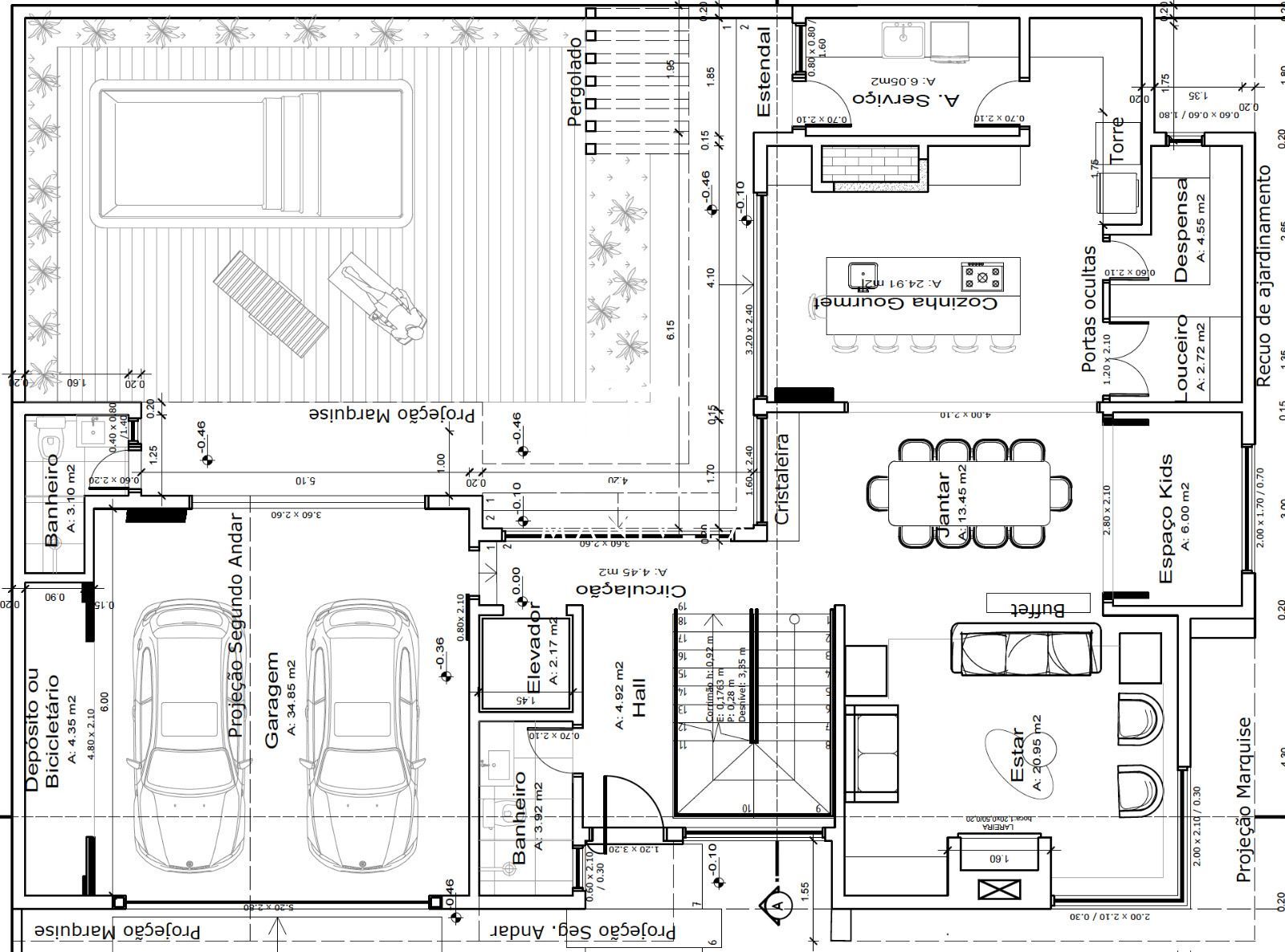
O projeto conta com 3 suítes, sendo a suíte principal com closet, banheiro com banheira de hidromassagem. O projeto possui também cozinha gourmet, estar social com lareira, espaço kids, área de serviço, despensa, louceiro, banheiro social, elevador, garagem para 2 carros, anexo na garagem, possui um depósito ou bicicletário.
No projeto também possui um pergolado, área da piscina.
Agende sua visita e venha conhecer esse projeto unico.
Compartilhe! :)
R$ 480.000,00
- Imóveis publicados: 1386
- Localização: Santa Maria, RS
- Anúncio: Profissional
- Não deposite antecipadamente
- Atenção a ofertas milagrosas
- Denuncie em caso de suspeita
- Saiba com quem está negociando
- Locais públicos e movimentados
Antes de tudo, sempre evite depositar valores antes de verificar a existência do conteúdo anunciado.
Antes de iniciar uma negociação, pesquise a média de preço daquilo que deseja. Fique atento aos anúncios com preços muito baixos.
Havendo suspeita, você pode fazer uma denúncia clicando em "Denunciar" na página do anúncio ou pelo chat.
Antes de encontrar a outra pessoa, pergunte o nome completo, lugar onde mora ou trabalha e faça pesquisas na Internet.
Prefira fechar negócio em um lugar público que ofereça um ambiente seguro, e avise outras pessoas. Se possível, vá acompanhado.
Deseja realmente excluir sua conta?
Por que você está denunciando esse anúncio?
Mensagem para De David Manivela Imóveis Premium
[Terreno/Lote à venda no São José - Santa Maria, RS]
- Rodovia RST-509 - São José - Santa Maria, RS
![]() | Preço: R$ 480.000,00 Terreno total: 417 m2 Nossa referência: IM957009 Referência da imobiliária: 80391 |
Observações Gerais
Este terreno com as fundações pronta e projeto feito pelo Escritório de Ângela Pisani, espera pelo seu novo proprietário que pode ser você. O projeto conta com 3 suítes, sendo a suíte principal com closet, banheiro com banheira de hidromassagem. O projeto possui também cozinha gourmet, estar social com lareira, espaço kids, área de serviço, despensa, louceiro, banheiro social, elevador, garagem para 2 carros, anexo na garagem, possui um depósito ou bicicletário. No projeto também possui um pergolado, área da piscina. Agende sua visita e venha conhecer esse projeto unico.
Anunciante De David Manivela Imóveis Premium
Anúncio: Profissional
Telefone(s)
(55) 99209-5077
(55) 3307-7363











