Imóveis
Apartamento com 4 Dormitórios à venda, 162 m² por R$ 900.000,00
Rua Barão do Triunfo - Brooklin Paulista - São Paulo, SP
| |
Observações
Rua Barão do Triunfo, 639 -Brooklin — São Paulo–SP — CEP 04602-002
EDIFÍCIO FONTANA DI TREVI.
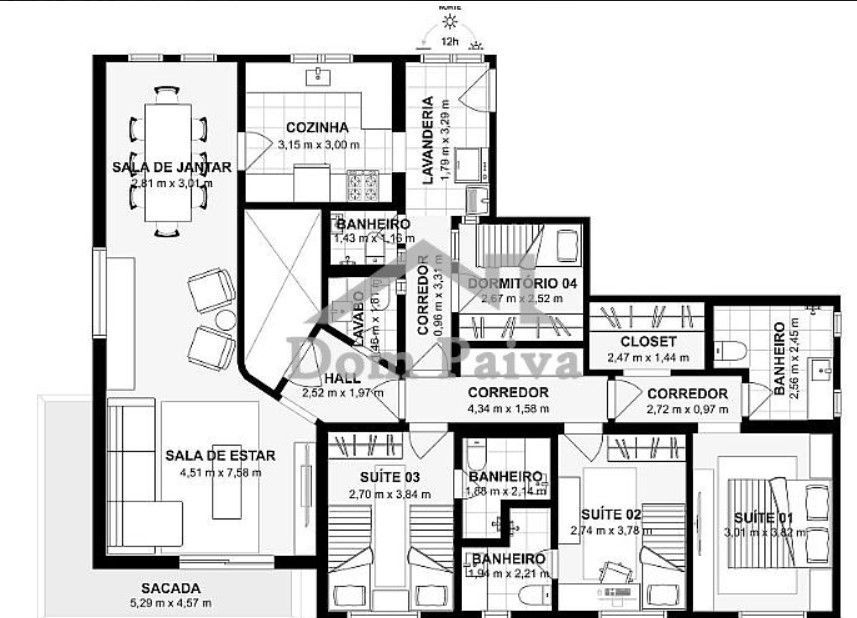
Apartamento 21, localizado no 2º andar. Possui 162 m² de área útil, 3 suítes, sala com varanda, cozinha, área de serviço.
Matriculado no 15º Cartório Registro de Imóveis de São Paulo sob 95.828, 95.829 e 95.830.
O prédio localiza-se na arborizada e tranquila Rua Barão do Triunfo, número 639 e possui vagas para visitantes, gerador de energia, piscina, salão de festas, portaria 24h. A região é repleta de serviços, supermercados como Pão de Açúcar e Mambo, drogarias, escolas como, por exemplo, o colégio Stockler (em frente ao prédio), aproximadamente 110 metros da avenida Vereador José Diniz, 250 metros da avenida Roberto Marinho, próximo a duas estações do METRO.
Imóvel desocupado.
Valor de avaliação R$ 1.900.000,00
Nesta oportunidade, o imóvel está disponível para venda direta: R$ 900.000,00
CONSIDERAÇÕES IMPORTANTES:
Atuamos com a intermediação de imóveis recuperados para quitação de dívidas através da alienação pela iniciativa particular, oferecendo ao comprador uma forma segura e vantajosa, seja para moradia ou investimento.
Atenção: Por estarem em fase final de regularização, não é possível agendar visitas aos imóveis. No entanto, oferecemos acesso completo a todas as informações, documentações e imagens de referência podem ser consultadas durante os atendimentos.
Nesta modalidade, o comprador receberá o imóvel desocupado, e desembaraçado de quaisquer pendências, como débitos, processos judiciais, processos administrativos e cobranças extrajudiciais.
A resolução dessas pendências é de responsabilidade do intermediador, até transmissão efetiva do bem na certidão de matrícula.
Por tratar-se de imóveis oriundos de leilões devidos dívidas, a disponibilidade do imóvel para negociação deve ser atualizada no momento do atendimento.
(Pode haver pequenas diferenças entre as características anunciadas e as reais do imóvel por exigência dos portais imobiliários. Confirme todos os detalhes conosco).
Vidot Financiamentos e Negócios Imobiliários Ltda.
CRECI: 50079-J | CNPJ: 46.551.621/0001-64
FEBRABAN: 0229470434716212 / 6225212604948861
Fale conosco:
Telefone: (11) 2680-0269
WhatsApp: (11) 2680-0269
E-mail: contato@vidot.com.br
Compartilhe! :)
R$ 900.000,00
- Imóveis publicados: 377
- Localização: Barueri, SP
- Anúncio: Profissional
- Não deposite antecipadamente
- Atenção a ofertas milagrosas
- Denuncie em caso de suspeita
- Saiba com quem está negociando
- Locais públicos e movimentados
Antes de tudo, sempre evite depositar valores antes de verificar a existência do conteúdo anunciado.
Antes de iniciar uma negociação, pesquise a média de preço daquilo que deseja. Fique atento aos anúncios com preços muito baixos.
Havendo suspeita, você pode fazer uma denúncia clicando em "Denunciar" na página do anúncio ou pelo chat.
Antes de encontrar a outra pessoa, pergunte o nome completo, lugar onde mora ou trabalha e faça pesquisas na Internet.
Prefira fechar negócio em um lugar público que ofereça um ambiente seguro, e avise outras pessoas. Se possível, vá acompanhado.
Deseja realmente excluir sua conta?
Por que você está denunciando esse anúncio?
Mensagem para Vidot Financiamentos e Negócios Imobiliários Ltda
[Apartamento à venda no Brooklin Paulista - São Paulo, SP]
- Rua Barão do Triunfo - Brooklin Paulista - São Paulo, SP
![]() | Preço: R$ 900.000,00 Área construída: 162 m2 Dormitórios: 4 Suítes: 3 Banheiros: 5 Vagas de garagem: 1 Condomínio: R$ 2.600,00 Nossa referência: IM918572 Referência da imobiliária: 29186 |
Observações Gerais
Rua Barão do Triunfo, 639 -Brooklin — São Paulo–SP — CEP 04602-002 EDIFÍCIO FONTANA DI TREVI. Apartamento 21, localizado no 2º andar. Possui 162 m² de área útil, 3 suítes, sala com varanda, cozinha, área de serviço. Matriculado no 15º Cartório Registro de Imóveis de São Paulo sob 95.828, 95.829 e 95.830. O prédio localiza-se na arborizada e tranquila Rua Barão do Triunfo, número 639 e possui vagas para visitantes, gerador de energia, piscina, salão de festas, portaria 24h. A região é repleta de serviços, supermercados como Pão de Açúcar e Mambo, drogarias, escolas como, por exemplo, o colégio Stockler (em frente ao prédio), aproximadamente 110 metros da avenida Vereador José Diniz, 250 metros da avenida Roberto Marinho, próximo a duas estações do METRO. Imóvel desocupado. Valor de avaliação R$ 1.900.000,00 Nesta oportunidade, o imóvel está disponível para venda direta: R$ 900.000,00 CONSIDERAÇÕES IMPORTANTES: Atuamos com a intermediação de imóveis recuperados para quitação de dívidas através da alienação pela iniciativa particular, oferecendo ao comprador uma forma segura e vantajosa, seja para moradia ou investimento. Atenção: Por estarem em fase final de regularização, não é possível agendar visitas aos imóveis. No entanto, oferecemos acesso completo a todas as informações, documentações e imagens de referência podem ser consultadas durante os atendimentos. Nesta modalidade, o comprador receberá o imóvel desocupado, e desembaraçado de quaisquer pendências, como débitos, processos judiciais, processos administrativos e cobranças extrajudiciais. A resolução dessas pendências é de responsabilidade do intermediador, até transmissão efetiva do bem na certidão de matrícula. Por tratar-se de imóveis oriundos de leilões devidos dívidas, a disponibilidade do imóvel para negociação deve ser atualizada no momento do atendimento. (Pode haver pequenas diferenças entre as características anunciadas e as reais do imóvel por exigência dos portais imobiliários. Confirme todos os detalhes conosco). Vidot Financiamentos e Negócios Imobiliários Ltda. CRECI: 50079-J | CNPJ: 46.551.621/0001-64 FEBRABAN: 0229470434716212 / 6225212604948861 Fale conosco: Telefone: (11) 2680-0269 WhatsApp: (11) 2680-0269 E-mail: contato@vidot.com.br
Anunciante Vidot Financiamentos e Negócios Imobiliários Ltda
Anúncio: Profissional
Telefone(s)
(11) 2680-0269







