Imóveis
Apartamento com 1 Dormitórios à venda, 50 m² por R$ 218.000,00
Avenida Rangel Pestana - Brás - São Paulo, SP
| |
Observações
Tipo de Imóvel: Apartamento
Endereço: Av. Rangel Pestana, 243 — Sé, São Paulo–SP,
CEP: 01017-905
Região: Prox. a praça da Sé
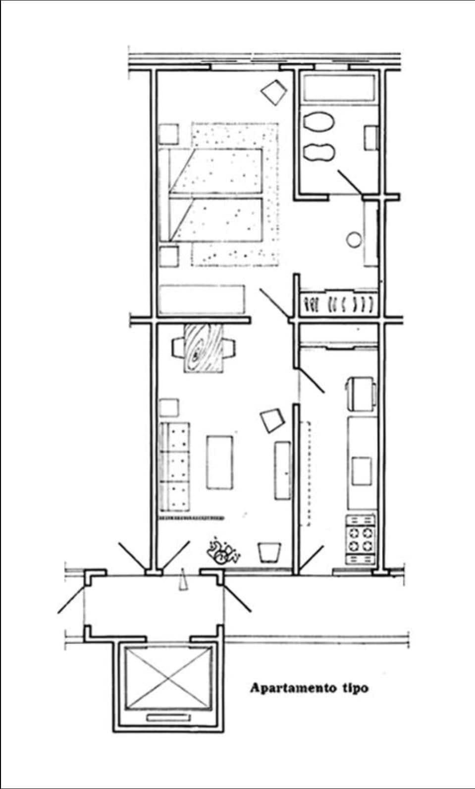
Área Privativa: 50,23 m²
Matrícula: 109.530, do 4º Cartório de Registro de Imóveis de São Paulo.
Descrição Estrutural: Apartamento n.º 16, no 1º andar do Edifício Rangel Pestana,
Valor de avaliação R$ 490.000,00
Valor de venda à vista: R$ 218.000,00
Para consultar imóveis nesta ou em outras regiões, acesse o portal: https://www.vidot.com.br
CONSIDERAÇÕES IMPORTANTES:
Atuamos com a intermediação de imóveis recuperados para quitação de dívidas através da alienação pela iniciativa particular, oferecendo ao comprador uma forma segura e vantajosa, seja para moradia ou investimento.
Atenção: Por estarem em fase final de regularização, não é possível agendar visitas aos imóveis. No entanto, oferecemos acesso completo a todas as informações, documentações e imagens de referência podem ser consultadas durante os atendimentos.
Nesta modalidade, o comprador receberá o imóvel desocupado, e desembaraçado de quaisquer pendências, como débitos, processos judiciais, processos administrativos e cobranças extrajudiciais.
A resolução dessas pendências é de responsabilidade do intermediador, até transmissão efetiva do bem na certidão de matrícula.
Por tratar-se de imóveis oriundos de leilões devidos dívidas, a disponibilidade do imóvel para negociação deve ser atualizada no momento do atendimento.
(Pode haver pequenas diferenças entre as características anunciadas e as reais do imóvel por exigência dos portais imobiliários. Confirme todos os detalhes conosco).
Vidot Financiamentos e Negócios Imobiliários Ltda.
CRECI: 50079-J | CNPJ: 46.551.621/0001-64
FEBRABAN: 0229470434716212 / 6225212604948861
Fale conosco:
Telefone: (11) 2680-0269
WhatsApp: (11) 2680-0269
E-mail: contato@vidot.com.br
Compartilhe! :)
R$ 218.000,00
- Imóveis publicados: 388
- Localização: Barueri, SP
- Anúncio: Profissional
- Não deposite antecipadamente
- Atenção a ofertas milagrosas
- Denuncie em caso de suspeita
- Saiba com quem está negociando
- Locais públicos e movimentados
Antes de tudo, sempre evite depositar valores antes de verificar a existência do conteúdo anunciado.
Antes de iniciar uma negociação, pesquise a média de preço daquilo que deseja. Fique atento aos anúncios com preços muito baixos.
Havendo suspeita, você pode fazer uma denúncia clicando em "Denunciar" na página do anúncio ou pelo chat.
Antes de encontrar a outra pessoa, pergunte o nome completo, lugar onde mora ou trabalha e faça pesquisas na Internet.
Prefira fechar negócio em um lugar público que ofereça um ambiente seguro, e avise outras pessoas. Se possível, vá acompanhado.
Deseja realmente excluir sua conta?
Por que você está denunciando esse anúncio?
Mensagem para Vidot Financiamentos e Negócios Imobiliários Ltda
[Apartamento à venda no Brás - São Paulo, SP]
- Avenida Rangel Pestana - Brás - São Paulo, SP
![]() | Preço: R$ 218.000,00 Área construída: 50 m2 Dormitórios: 1 Suítes: 1 Banheiros: 1 Nossa referência: IM1008687 Referência da imobiliária: 109530 |
Observações Gerais
Tipo de Imóvel: Apartamento Endereço: Av. Rangel Pestana, 243 — Sé, São Paulo–SP, CEP: 01017-905 Região: Prox. a praça da Sé Área Privativa: 50,23 m² Matrícula: 109.530, do 4º Cartório de Registro de Imóveis de São Paulo. Descrição Estrutural: Apartamento n.º 16, no 1º andar do Edifício Rangel Pestana, Valor de avaliação R$ 490.000,00 Valor de venda à vista: R$ 218.000,00 Para consultar imóveis nesta ou em outras regiões, acesse o portal: https://www.vidot.com.br CONSIDERAÇÕES IMPORTANTES: Atuamos com a intermediação de imóveis recuperados para quitação de dívidas através da alienação pela iniciativa particular, oferecendo ao comprador uma forma segura e vantajosa, seja para moradia ou investimento. Atenção: Por estarem em fase final de regularização, não é possível agendar visitas aos imóveis. No entanto, oferecemos acesso completo a todas as informações, documentações e imagens de referência podem ser consultadas durante os atendimentos. Nesta modalidade, o comprador receberá o imóvel desocupado, e desembaraçado de quaisquer pendências, como débitos, processos judiciais, processos administrativos e cobranças extrajudiciais. A resolução dessas pendências é de responsabilidade do intermediador, até transmissão efetiva do bem na certidão de matrícula. Por tratar-se de imóveis oriundos de leilões devidos dívidas, a disponibilidade do imóvel para negociação deve ser atualizada no momento do atendimento. (Pode haver pequenas diferenças entre as características anunciadas e as reais do imóvel por exigência dos portais imobiliários. Confirme todos os detalhes conosco). Vidot Financiamentos e Negócios Imobiliários Ltda. CRECI: 50079-J | CNPJ: 46.551.621/0001-64 FEBRABAN: 0229470434716212 / 6225212604948861 Fale conosco: Telefone: (11) 2680-0269 WhatsApp: (11) 2680-0269 E-mail: contato@vidot.com.br
Anunciante Vidot Financiamentos e Negócios Imobiliários Ltda
Anúncio: Profissional
Telefone(s)
(11) 2680-0269





