Imóveis
Imóvel comercial para alugar, 2.200 m² por R$ 40.000,00
Centro - Santos, SP
| |
Observações
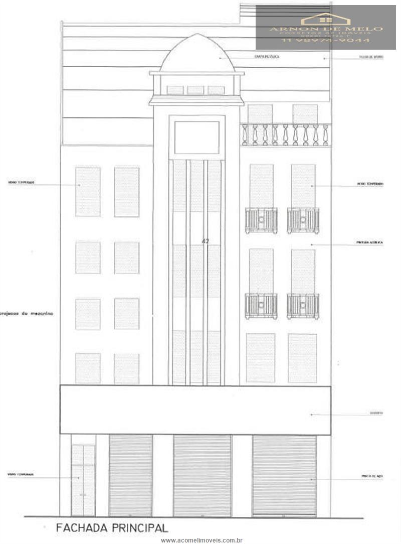
Localizado na Rua Amador Bueno, este imóvel de construção histórica ocupa uma posição de destaque em frente à Praça Ruy Barbosa, no coração do Centro de Santos. Trata-se de um ativo único que concilia o prestígio da arquitetura clássica com uma infraestrutura logística rara para a região central: um estacionamento privativo com capacidade para 40 veículos.
Configuração dos Pavimentos
O edifício é composto por pavimento térreo, três pavimentos superiores e sótão, totalizando 2.200 metros quadrados de área construída com excelente distribuição volumétrica:
Térreo: Ampla fachada com acesso direto para a Praça Ruy Barbosa, ideal para recepções ou operações de grande fluxo.
Primeiro Pavimento: Mezanino com colunas aparentes e laje aberta, proporcionando um layout flexível e esteticamente diferenciado.
Segundo e Terceiro Pavimentos: Lajes completas com vão central projetado para entrada de luz natural, otimizando o ambiente interno para jardins de inverno ou espaços de trabalho colaborativo.
Último Pavimento e Varanda: Espaço superior com infraestrutura de cozinha e varanda com vista panorâmica para a praça e para o Porto de Santos.
Sótão: Área adicional que pode ser utilizada para arquivos, estoque ou suporte técnico.
Condições Comerciais de Locação
O imóvel está disponível para ocupação imediata sob as seguintes diretrizes:
Valor da Locação: R$ 40.000,00 mensais.
Prazo Contratual: 60 meses.
Reajuste Anual: IGPM.
Garantias Aceitas: Fiador, seguro fiança ou caução.
Carência: Período a negociar, dependendo das adaptações necessárias para a atividade pretendida.
Versatilidade e Estacionamento
A oferta de 40 vagas de garagem é um diferencial crítico no Centro Histórico, tornando este prédio a escolha ideal para sedes administrativas de empresas portuárias, órgãos públicos ou centros educacionais que demandam alta acessibilidade e segurança para colaboradores e diretoria.
Compartilhe! :)
R$ 40.000,00
- Imóveis publicados: 606
- Localização: Praia Grande, SP
- Anúncio: Profissional
- Não deposite antecipadamente
- Atenção a ofertas milagrosas
- Denuncie em caso de suspeita
- Saiba com quem está negociando
- Locais públicos e movimentados
Antes de tudo, sempre evite depositar valores antes de verificar a existência do conteúdo anunciado.
Antes de iniciar uma negociação, pesquise a média de preço daquilo que deseja. Fique atento aos anúncios com preços muito baixos.
Havendo suspeita, você pode fazer uma denúncia clicando em "Denunciar" na página do anúncio ou pelo chat.
Antes de encontrar a outra pessoa, pergunte o nome completo, lugar onde mora ou trabalha e faça pesquisas na Internet.
Prefira fechar negócio em um lugar público que ofereça um ambiente seguro, e avise outras pessoas. Se possível, vá acompanhado.
Deseja realmente excluir sua conta?
Por que você está denunciando esse anúncio?
Mensagem para Acomel
[Imóvel comercial para alugar no Centro - Santos, SP]
- Centro - Santos, SP
![]() | Preço: R$ 40.000,00 Área construída: 2.200 m2 Terreno total: 505 m2 Banheiros: 16 Vagas de garagem: 40 Nossa referência: IM1023273 Referência da imobiliária: 2888 |
Observações Gerais
Localizado na Rua Amador Bueno, este imóvel de construção histórica ocupa uma posição de destaque em frente à Praça Ruy Barbosa, no coração do Centro de Santos. Trata-se de um ativo único que concilia o prestígio da arquitetura clássica com uma infraestrutura logística rara para a região central: um estacionamento privativo com capacidade para 40 veículos. Configuração dos Pavimentos O edifício é composto por pavimento térreo, três pavimentos superiores e sótão, totalizando 2.200 metros quadrados de área construída com excelente distribuição volumétrica: Térreo: Ampla fachada com acesso direto para a Praça Ruy Barbosa, ideal para recepções ou operações de grande fluxo. Primeiro Pavimento: Mezanino com colunas aparentes e laje aberta, proporcionando um layout flexível e esteticamente diferenciado. Segundo e Terceiro Pavimentos: Lajes completas com vão central projetado para entrada de luz natural, otimizando o ambiente interno para jardins de inverno ou espaços de trabalho colaborativo. Último Pavimento e Varanda: Espaço superior com infraestrutura de cozinha e varanda com vista panorâmica para a praça e para o Porto de Santos. Sótão: Área adicional que pode ser utilizada para arquivos, estoque ou suporte técnico. Condições Comerciais de Locação O imóvel está disponível para ocupação imediata sob as seguintes diretrizes: Valor da Locação: R$ 40.000,00 mensais. Prazo Contratual: 60 meses. Reajuste Anual: IGPM. Garantias Aceitas: Fiador, seguro fiança ou caução. Carência: Período a negociar, dependendo das adaptações necessárias para a atividade pretendida. Versatilidade e Estacionamento A oferta de 40 vagas de garagem é um diferencial crítico no Centro Histórico, tornando este prédio a escolha ideal para sedes administrativas de empresas portuárias, órgãos públicos ou centros educacionais que demandam alta acessibilidade e segurança para colaboradores e diretoria.
Anunciante Acomel
Anúncio: Profissional
Telefone(s)
(11) 98974-9044












